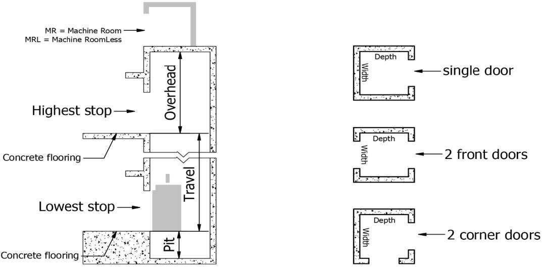
Product Request FormYour InfoName(Required) First Last PhoneEmail Company NameProject InfoCustomer NameProject NameProject AddressElevator SpecsNumber of FloorsPlease enter a number from 0 to 99.Number of stopsPlease enter a number from 0 to 99.Speed (m/s)Please enter a number from 0 to 10.Capacity (person)Please enter a number from 0 to 30.Capacity (kg)Please enter a number from 0 to 99999.Travel (m)Please enter a number from 0 to 200.Pit (m)Please enter a number from 0 to 200.Overhead (m)Please enter a number from 0 to 200.Height of each floor (m)Please enter a number from 0 to 10.Shaft width (mm)Please enter a number from 0 to 1000.Shaft height (mm)Please enter a number from 0 to 20000.Motor roomMachine RoomMachine RoomLessStructure conditionDoor and cabin specsDoor width (mm)Please enter a number from 1000 to 20000.Door height (mm)Please enter a number from 1000 to 20000.Material of landing door panelspaintstainless steelglassMaterial of car door panelspaintstainless steelglassType of entrancesingle door2 front doors2 corner doorsType of landing doorsfully automaticswing doorType of car doorfully automaticsemi-automaticType of openingcentraltelescopicMaterial of cabin decorationsilver stainless steelgolden stainless steelmirror stainless steelpanoramicOtherDescriptionCAPTCHA